43+ 10 Bedroom House Floor Plans, Popular Ideas!
April 17, 2021
0
Comments
12 bedroom House Plans, 10 bedroom House plan gallery, 15 bedroom house Plans, 10 Bedroom single Family house plans, 10 bedroom Modern House Plans, 20 Bedroom House Plans, 10 Bedroom 2 Story house Plans, 9 bedroom House Plans, 11 bedroom house Plans, 8 bedroom House Plans, 7 bedroom House Plans, Mansion floor plans,
43+ 10 Bedroom House Floor Plans, Popular Ideas! - The house will be a comfortable place for you and your family if it is set and designed as well as possible, not to mention house plan gallery. In choosing a house plan gallery You as a homeowner not only consider the effectiveness and functional aspects, but we also need to have a consideration of an aesthetic that you can get from the designs, models and motifs of various references. In a home, every single square inch counts, from diminutive bedrooms to narrow hallways to tiny bathrooms. That also means that you’ll have to get very creative with your storage options.
Therefore, house plan gallery what we will share below can provide additional ideas for creating a house plan gallery and can ease you in designing house plan gallery your dream.Check out reviews related to house plan gallery with the article title 43+ 10 Bedroom House Floor Plans, Popular Ideas! the following.

10 Bedrooms House Plan with 10 Bathrooms and 3 Car Garage . Source : ghanahouseplans.com
10 Bedrooms House Plan with 10 Bathrooms and 3 Car Garage
10 Bedrooms House Plan Download This 10 Bedrooms mansion Plan instantly and build your dream home The 10 bedroom Mansion House Plan is full of luxurious amenities Huge master suite each bedroom
Awesome 10 Bedroom House Floor Plans New Home Plans Design . Source : www.aznewhomes4u.com
10 Bedroom Home Floor Plans House Design Ideas
House floor plans 50 400 sqm designed design 66gf hipster 3 bedroom 10x10 with bedrooms 4 apartment duplex 6 corner improve a home move 10Bedroom House Floor Plans Likewise 32174House Plan 10 Bedroom GallerySplit Bedroom Layout Why You Should Consider It For Your New HomeHouse Floor Plans

Awesome 10 Bedroom House Floor Plans New Home Plans Design . Source : www.aznewhomes4u.com
Mansion House Plans from HomePlans com
At more than 5 000 square feet these plans have plenty of room for entertaining great informal spaces for family fun and sumptuous private areas where it s easy to get away from life s troubles and relax Our mansion house plans
Awesome 10 Bedroom House Floor Plans New Home Plans Design . Source : www.aznewhomes4u.com
Luxury House Plans Floor Plans Designs Houseplans com
The best luxury house floor plans Find modern 6 bedroom 2 story million dollar mansion designs large ranch homes more Call 1 800 913 2350 for expert help

Awesome 10 Bedroom House Floor Plans New Home Plans Design . Source : www.aznewhomes4u.com
Country Style Floor Plans Farm Cottage House Plans
Country house plans and homes are pure Americana evoking a pastoral vision of a quaint house with a wide front porch surrounded by pastures and shaded by large trees Call us at 1 877 803 2251 Call
100 Bedroom Mansion 10 Bedroom House Floor Plan mansion . Source : www.treesranch.com
Elegant Ten Bedroom House Plans New Home Plans Design . Source : www.aznewhomes4u.com
100 Bedroom Mansion 10 Bedroom House Floor Plan mansion . Source : www.mexzhouse.com

Stately 10 Bedroom Mansion In Surrey England With 10 Car . Source : homesoftherich.net

Awesome 10 Bedroom House Floor Plans New Home Plans Design . Source : www.aznewhomes4u.com

10 Bedrooms House Plan with 10 Bathrooms and 3 Car Garage . Source : ghanahouseplans.com
100 Bedroom Mansion 10 Bedroom House Floor Plan mansion . Source : www.mexzhouse.com

10 Bedroom House Plans Elegant Sienna Court House Plan . Source : houseplandesign.net
Awesome 10 Bedroom House Floor Plans New Home Plans Design . Source : www.aznewhomes4u.com
Mansion Bedrooms 10 Bedroom House Floor Plan island home . Source : www.mexzhouse.com
Luxury 9 Bedroom House Plans New Home Plans Design . Source : www.aznewhomes4u.com
10 Bedroom House Floor Plan 100 Bedroom House 4 bedroom . Source : www.mexzhouse.com
Awesome 10 Bedroom House Floor Plans New Home Plans Design . Source : www.aznewhomes4u.com
100 Bedroom Mansion 10 Bedroom House Floor Plan 7 bedroom . Source : www.treesranch.com

Cool 6 Bedroom House Plans Luxury New Home Plans Design . Source : www.aznewhomes4u.com

10 Bedroom House Plans Fresh Mansion House Plans Bedrooms . Source : houseplandesign.net
Awesome Six Bedroom House Plans New Home Plans Design . Source : www.aznewhomes4u.com
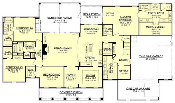
European Style House Plan 5 Beds 6 5 Baths 6712 Sq Ft . Source : houseplans.com

Wanda Simple 2 Bedroom House with Fire Wall Pinoy ePlans . Source : www.pinoyeplans.com
In Brazil Likewise 10 Bedroom Floor Plans On Barn Homes . Source : www.woodynody.com

Cool 5 Bedroom House Plans Perth New Home Plans Design . Source : www.aznewhomes4u.com
Castle House Plans Mansion House Plans 8 Bedrooms 8 . Source : www.mexzhouse.com
8 Bedroom Floor Plans 4 Bedroom Open Floor Plans open . Source : www.treesranch.com
Floor Plan for a Small House 1 150 sf with 3 Bedrooms and . Source : evstudio.com
100 Bedroom Mansion 10 Bedroom House Floor Plan 7 bedroom . Source : www.treesranch.com

The flagship Fullhouse vacation home with 14 bedrooms . Source : www.pinterest.fr

HOUSE PLANS 10X20 Bedroom Furniture Ideas . Source : talesfromthebedroom.blogspot.com
Cool Affordable 5 Bedroom House Plans New Home Plans Design . Source : www.aznewhomes4u.com

10 Bedrooms House Plan with 10 Bathrooms and 3 Car Garage . Source : ghanahouseplans.com

Country Style House Plan 4 Beds 3 5 Baths 3194 Sq Ft . Source : www.houseplans.com